DP Header Logo
Neubau von 5 Mehrfamilienhäusern

NEUBAU VON 5 MEHRFAMILIENHÄUSERN

Standort

Hamburg, Deutschland

Leistungen

Erstellung von Schal- und Bewehrungsplänen (LPH 5)

Bruttogrundfläche

7.175 m²

Jahr

2020-2021

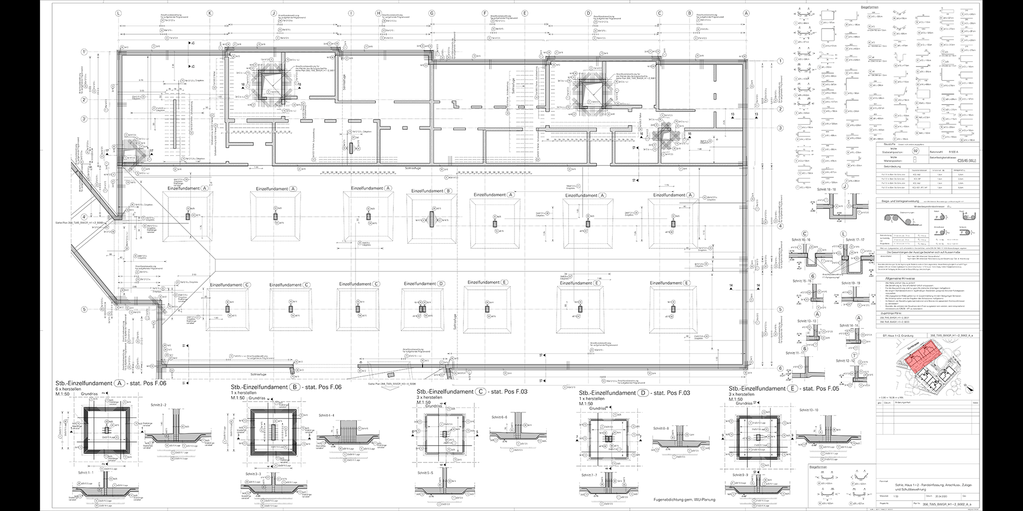
Bei dem Neubau handelt es sich um fünf Mehrfamilienwohnhäuser mit drei Obergeschossen (EG, 1. OG und DG). Die Obergeschosse sind für Wohnungen vorgesehen. Alle Häuser außer einem sind eingeschossig unterkellert. Im Untergeschoss sind Abstellräume und Technikflächen vorgesehen. Unter dem Innenhof wurde eine eingeschossige Tiefgarage gebaut.

Die Gebäude wurden in Massivbauweise mit Stahlbetondecken und Mauerwerks- bzw. Stahlbetonwänden errichtet. Die Geschossdecken sind sogenannte ‚Filigrandecken‘. Die erdberührten Wände des Untergeschosses und die Aufzugswände sind FT-Elementwände (Hohlwände). Die Gründung erfolgte als Flachgründung. Dächer sind Pfettendächer, die die Form des Satteldachs haben.

Die Balkone wurden als thermisch getrennte Fertigteile vorgesehen. Die Treppenläufe sind Stb.-Fertigteile, die zur Verbesserung der Schalldämmung durch das Schöck Tronsole® System vom Rest der Konstruktion getrennt wurden. Die Stb.-Treppenpodeste wurden vor Ort bewehrt und betoniert. Unser Team hat sich bei diesem Projekt ausschließlich mit der Ortbetonplanung beschäftigt.